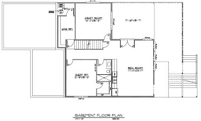
Here are our house plans. I'm so excited about every little part of them....the french doors, my over-sized pantry that will probably be too small, the nook, the formal dining room, the two islands, and the mud room, Oh and the master... I love that I can get to the laundry through the closet. The sitting area will be just lovely, and I can't wait to put a chandelier above the claw foot tub in the master bath (that's not actually shown as that in the plan). My husband thinks we are going to be living in a doll house.
Wednesday, July 31, 2013
Tuesday, July 30, 2013
Building our dream home!
Yesterday was a BIG day for the Hunt family. We picked up our building permit for our new home. Yeah! I'm so excited to get started building and to put all of my Houzz and Pinterest ideas to life. :)
In October I began working with a close friend to design our house plans from the ground up (so exciting). We got all of my ideas on paper and came up with a great starting point. In January we began working with a designer and engineer team to iron out all of these details. Finally, after lots of hard work and fine tuning all of the little and big details we submitted our plans to the city of Kirkland in May. Just a week ago we were so excited to hear that our plans were ready to be picked up and there were no revisions needed. We couldn't believe this and were very happy that we had worked with such a great team.
This is a picture of the front of the house that you would see from the street. We haven't decided if we will do all one color, or if we will do stained shingles on the top floor level...oh so many decisions. :)
This is a picture of the other side...the colors and some of the details aren't final but the structure will be the same. There will be stone from ground up on the pillars. Excited about the outdoor living area on the bottom floor deck. :)
Subscribe to:
Comments (Atom)
.jpg)